Imagine 77

Casa individuala | 130mp utili | 500mp teren | Zona Roata Faget

ID: P11243 Cluj-Napoca, Manastur 2
350.000€
Camere
4
Suprafata utila
130 mp
Bai
4
Front stradal
15 m
An constructie
2025
Descriere
Va propunem spre vanzare o casa individuala într-o zonă superbă, ideală pentru familia ta situata in zona Roata Faget. Casa a fost edificata in anul 2025, pe regimul de inaltime: Parter + Etaj.

Casa are suprafata utila de 130 mp + garaj de 25mp, fiind construita pe un teren generos de 500mp.

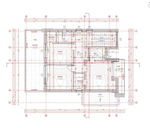
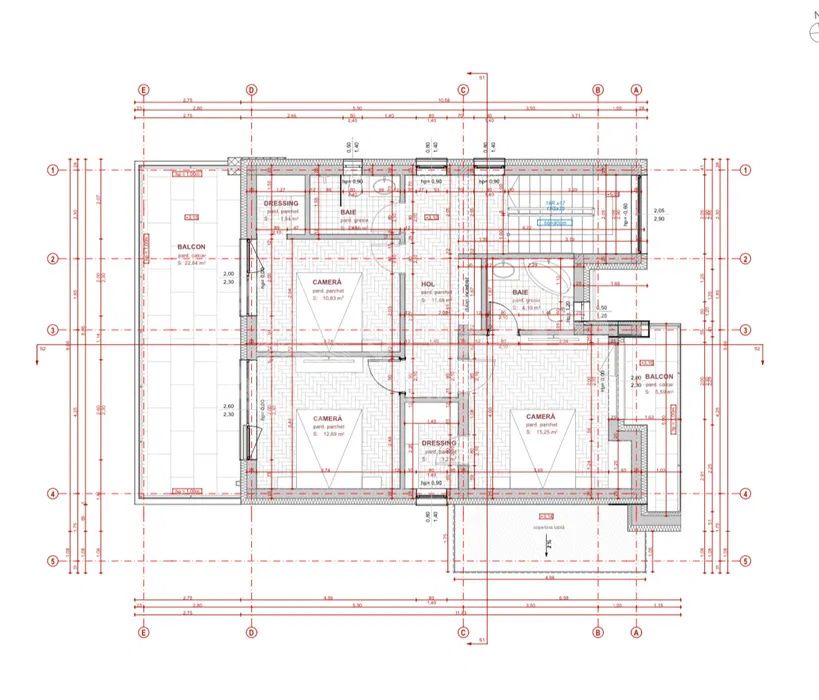
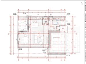
Compartimentarea este gandita astfel :
- Parter: living generos, bucătărie separată, cameră, baie, hol, debara,terasa 12 mp
- Etaj: 3 dormitoare, fiecare cu baie proprie, 2 dressinguri, hol ,2 terase largi 25 mp

Casa se predă la stadiul semifinisat, astfel: tencuită și gletuită interior, cu încălzire în pardoseală + șapă turnată, geamuri termopan premium, ușă de intrare montată, instalații sanitare și electrice pe poziții. La exterior va fi montata izolație termică cu polistiren de 15 cm, panouri solare + pompă de căldură pentru eficiență energetică maximă.

Proprietatea este ideala pentru cei care caută liniște, spațiu și confort. Zona este aerisită, cu priveliște plăcută și acces facil către oraș.

Pentru mai multe detalii sau programarea unei vizionari, nu ezitati sa ne contactati! Garantam castigul reciproc!

[ ID Proprietate: P11243 ]
Caracteristici
  • ID:P11243
  • Nr. camere:4
  • Nr. dormitoare:3
  • S. utila:130.00 mp
  • S. construita:168.00 mp
  • S. teren:500.00 mp
  • Nr. bucatarii:1
  • Nr. bai:4
  • Nr. balcoane:2
  • Front stradal:15.00 m
  • Nr. fronturi:1
  • An constructie:2025
  • Structura rezistenta:Caramida
  • Regim inaltime:P+1
Specificatii
Curent
Apa
Canalizare
Centrala proprie
Izolatie Exterior
Ferestre Termopan
Usa intrare Metal
Apometre
Nemobilat
Curte
Localizare
Ioan-Cristian Alexandru
Consilier Imobiliar
Esti interesat de aceasta proprietate ?
Proprietati similare
TOP 0% comision Rep. exclusiva Imagine 4901
Comision 0% Casa individuala la cheie | 360mp teren | Ira Someseni
Cluj-Napoca, Someseni 350.000€
5 camere 2 bai 140mp
TOP 0% comision Rep. exclusiva Imagine 3322
Comision 0% Casa individuala noua | Teren 800mp | Sat Gheorghieni!
Gheorghieni, Central 325.000€
5 camere 3 bai 140mp
TOP Imagine 105
Casa tip duplex | 4 camere | 200mp teren | Panorama | Zona Voronet!
Cluj-Napoca, Iris 329.000€
4 camere 3 bai 120mp
Imagine 5793
Casa individuala la cheie | 72mp utili | 317 mp teren | Intre Lacuri
Cluj-Napoca, Intre Lacuri 350.000€ 399.000€
2 camere 1 baie 72mp
Imagine 5168
Casa individuala | 70mp utili | 601 mp teren | Dambul Rotund
Cluj-Napoca, Dambul-Rotund 315.000€
2 camere 1 baie 70mp
Imagine 5106
Casa individuala | 160mp utili | 250mp teren | Zona Vivo Mall
Cluj-Napoca, Manastur / Vivo (Polus Center) 335.000€
4 camere 3 bai 160mp