Imagine 77

Casa individuala 4 camere | Teren 500mp | Manastur | Roata Faget

ID: P9706 Cluj-Napoca, Manastur 2
389.000€
Camere
4
Suprafata utila
192 mp
Bai
3
Front stradal
15 m
An constructie
2025
Descriere
Va prezentam spre vanzare casa individuala cu 4 camere, construita pe un teren de 500mp, cu front de 15m, intr-o zona in plina dezvoltare, in zona restaurantului Roata Faget.

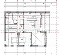
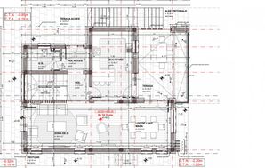
Avand suprafata utila de 200 mp, imobilul este compartimentat astfel:
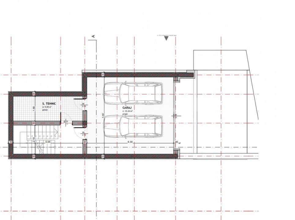
- subsol: garaj cu loc pentru 2 masini, spatiu tehnic.
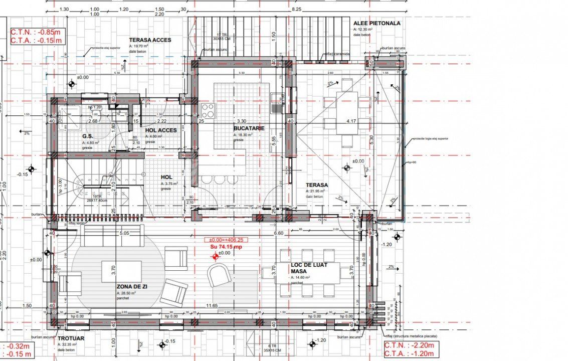
- parter: camera de zi impreuna cu loc de luat masa, 1 bucatarie separata, 1 baie cu geam, 1 hol de acces si 1 terasa
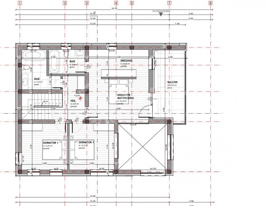
- etaj: 1 dormitor matrimonial cu baie proprie (cu geam) cu dressing si iesire pe tarasa, 2 dormitoare, 1 baie cu geam si 1 hol de acces

Proprietatea se vinde la stadiul de semifinisat cu preti tencuiti si gletuiti, instalatii electrice si sanitare trase pe pozitii, geamuri termopan, usa de metal la intrare

Ca si utilitati, casa dispune de curent electric si apa, fosa septica. Momentan nu exista gaz in zona, incalzirea facandu-se electric sau prin butelii de capacitate mare.

Termenul de finalizare al constructiei este anul acesta.

Pentru mai multe informatii sau programarea unei vizionai, nu ezitati sa ne contactati. Garantam castigul reciproc! D intern : [P9706]
Caracteristici
  • ID:P9706
  • Nr. camere:4
  • Nr. dormitoare:3
  • S. utila:192.00 mp
  • S. terase:35.00 mp
  • S. construita:210.00 mp
  • S. teren:500.00 mp
  • Nr. bucatarii:1
  • Nr. bai:3
  • Nr. balcoane:1
  • Nr. garaje:1
  • Front stradal:15.00 m
  • Nr. fronturi:1
  • An constructie:2025
  • Structura rezistenta:Caramida
  • Regim inaltime:S+P+1
Specificatii
Curent
Apa
Izolatie Exterior
Ferestre Termopan
Usa intrare Metal
Apometre
Contor caldura
Nemobilat
Curte
Localizare
Win Imobiliare
Office
Esti interesat de aceasta proprietate ?
Proprietati similare
TOP 0% comision Rep. exclusiva Imagine 4901
Comision 0% Casa individuala la cheie | 360mp teren | Ira Someseni
Cluj-Napoca, Someseni 350.000€
5 camere 2 bai 140mp
TOP Imagine 4442
Casa individuala | 120mp utili | Teren 500mp | Garaj | Zona Iulius
Cluj-Napoca, Intre Lacuri 445.000€
3 camere 1 baie 120mp
Imagine 5793
Casa individuala la cheie | 72mp utili | 317 mp teren | Intre Lacuri
Cluj-Napoca, Intre Lacuri 350.000€ 399.000€
2 camere 1 baie 72mp
Imagine 5106
Casa individuala | 160mp utili | 250mp teren | Zona Vivo Mall
Cluj-Napoca, Manastur / Vivo (Polus Center) 335.000€
4 camere 3 bai 160mp
Imagine 5159
Casa individuala 3 camere | Teren 764mp | Front 15ml | Dambul Rotund
Cluj-Napoca, Dambul-Rotund 439.500€
3 camere 1 baie 86.18mp
Imagine 4373
Casa individuala 2 camere | Teren 770mp | Front 12ml | Dambul Rotund
Cluj-Napoca, Dambul-Rotund 395.000€
2 camere 1 baie 70mp