Imagine 77

Teren autorizat pentru casa duplex | 192mp util | Borhanci

ID: P6563 Cluj-Napoca, Borhanci 6
325.000€
Suprafata teren
520 mp
Front stradal
27.95 m
Descriere
Oferim spre vanzare teren in suprafata totala de 520 mp (479mp + 42mp trotuar + cotă parte drum), situat in zona de case a cartierului Borhanci!

Terenul este autorizat pentru construire casa duplex cu toate utilitatile pe parcela (apa, gaz, curent si canalizare).

Parcela are forma regulata, iar frontul la strada este unul generos de cca. 28m, accesul fiind facut de pe strada pietruita.

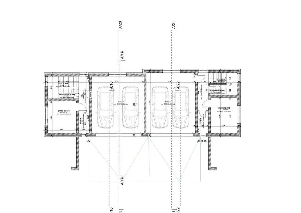
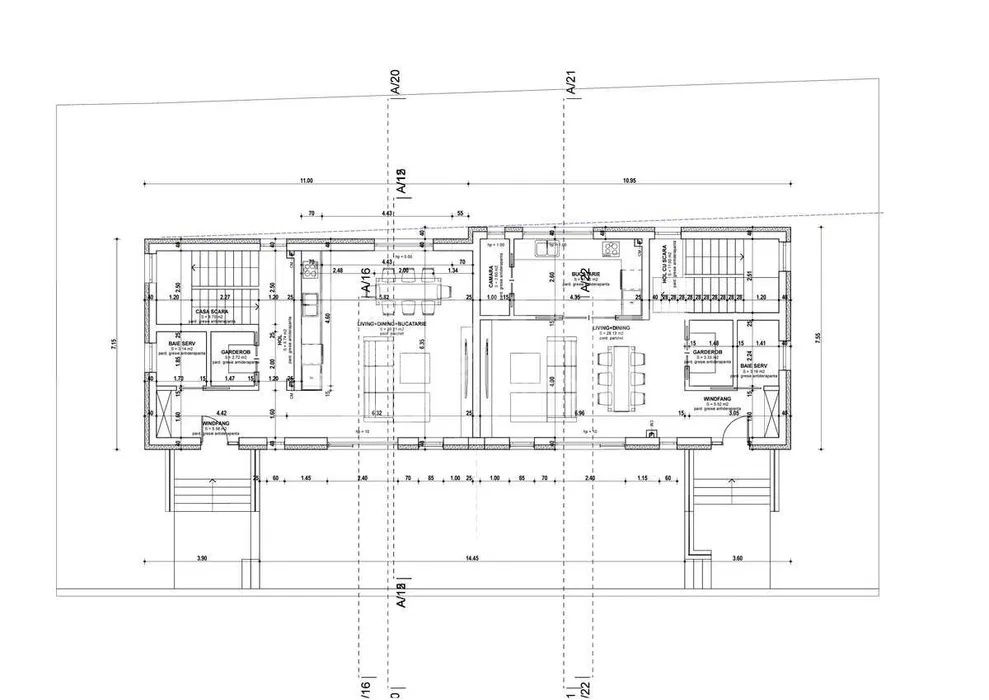
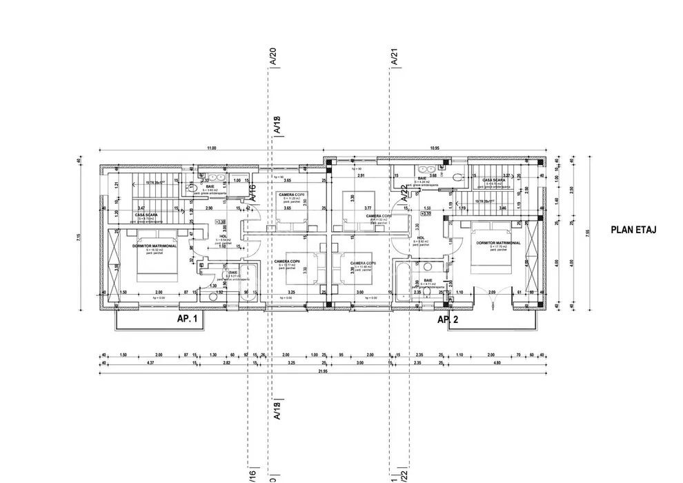
Casa este structurata pe D+P+E, cu o suprafață utilă de 192mp/unitate locativă.

Locatia terenului este una favorabila, avand in vecinatati doar case si avand totodata liniste si intimitate. Strada este una privata pe care vor fi doar constructii noi cu regim redus de inaltime.

Pentru detalii suplimentare va stam la dispozitie! Garantam castigul reciproc! ID intern: [P6563]
Caracteristici
  • ID:P6563
  • S. teren:520.00 mp
  • Front stradal:27.95 m
  • Nr. fronturi:1
  • Clasificare teren:Intravilan
  • Regim inaltime:P+1
Specificatii
Curent
Apa
Canalizare
Gaz
Izolatie Exterior
Ferestre Termopan
Usa intrare Metal
Usa interior Lemn
Dressing
Bucatarie Nemobilata
Bucatarie Neutilata
Apometre
Contor gaz
Nemobilat
Curte
Localizare
Edvárd - Andrei Holló
Consilier Imobiliar
Esti interesat de aceasta proprietate ?
Proprietati similare
TOP 0% comision Rep. exclusiva Imagine 375
Teren 7200 mp ideal complex de case in sat Gheorghieni!
Gheorghieni, Central 360.000€ 415.000€
7200mp
Imagine 6205
Teren cu casa demolabila de 740 mp teren | 26ml front | Dambul Rotund
Cluj-Napoca, Dambul-Rotund 360.000€
2 camere 740mp
Imagine 6024
Teren intravilan 858mp cu PUZ aprobat | Zona Elitis | Faget
Cluj-Napoca, Faget 369.000€
858mp
Imagine 4745
Teren intravilan cu puz Aprobat | 458mp | Front 30mp | Faget
Cluj-Napoca, Faget 285.000€ 310.000€
458mp
Imagine 4383
Teren construibil imediat | 882mp | Front 13.14m | Dambul Rotund!
Cluj-Napoca, Dambul-Rotund 330.000€
882mp
Imagine 4244
Teren intravilan 470mp | 19m front | Buna Ziua |Zona strazii Macesului
Cluj-Napoca, Buna-Ziua 281.000€
470mp