Ansamblu de 2 hale industriale | 3042mp util | Tetarom 1

1.500.000€ + TVA
IDP10904 Cluj-Napoca, Dambul Rotund 2 Camere 2 Bai 3024.00 m2
Ioan-Cristian Alexandru
Ioan-Cristian Alexandru
Consilier Imobiliar
contact@winimobiliare.ro 0748 760 760

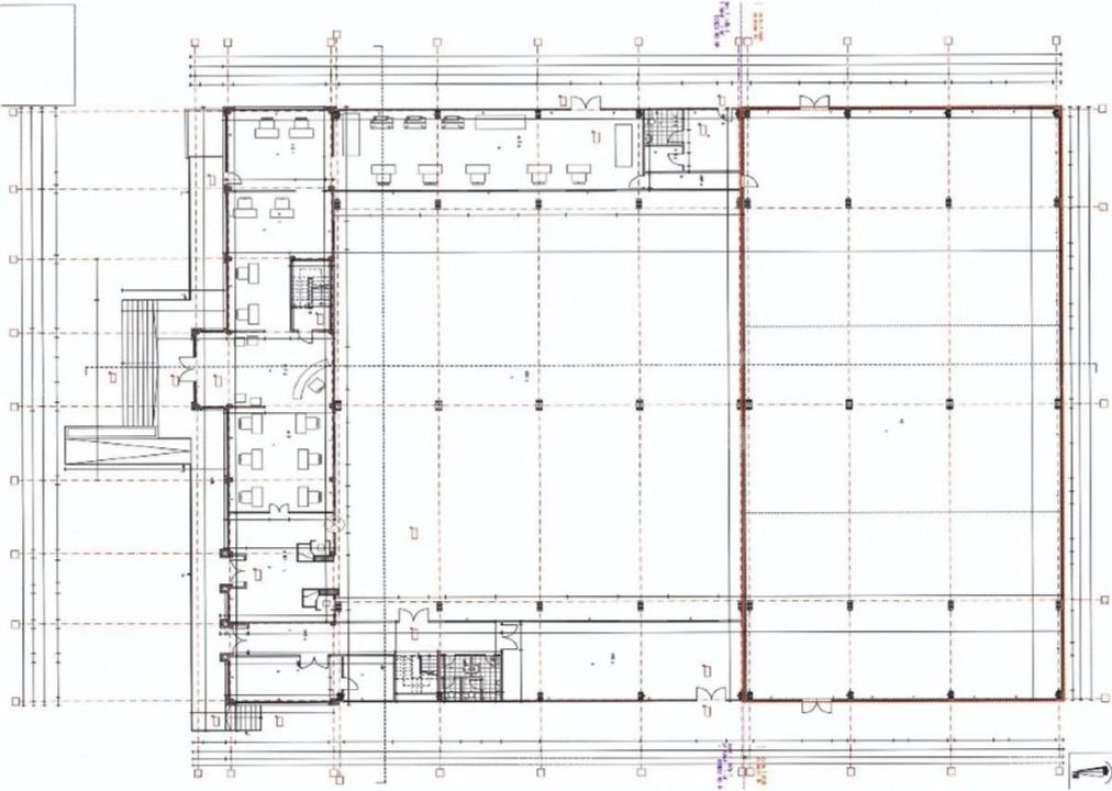
Va propunem spre vanzare 2 hale industriale cu amprentă totala la sol de 2081mp (extensibilă la 3500mp) si suprafata utila prezentă de 3024mp (extensibilă la peste 4500mp), edificate pe un teren de 5847mp in Parcul Industrial Tetarom 1. Un punct forte al amplasarii halelor este dat de accesibilitatea fata de punctele de interes, in proximitate existand mijloace de transport in comun, restaurante cu auto-servire, punct comercial alimentar si cafea, locuri de joacă, etc.

Locatia se preteaza pentru activitatile care necesita cu număr mare de personal, fiind ideale pentru producție, centru tehnologic de inovare-cercetare, depozitare, birouri, ateliere si activități logistice, firme de catering, tipografii, arhivare, activități comerciale, show-room Auto, Service Auto etc.

DIn punct de vedere tehnic, construcțiile au o structură metalică de tip SIN, cu inălțime max. utilă de 9,5m la coamă si 6,6m la streașina, submezanin de 3.20m si mezanin de la 3,22/ 4,2m, rampa tir, curent electric de forta, acoperiș din panouri sandwich 15cm si perete comun antifoc. Halele sunt concepute unitar, fiind despărțite printr-un perete antifoc si au un cadru de travee comun fiind gandite intr-o complementaritate functională.

Pentru mai multe detalii sau programarea unei vizionari, nu ezitati sa ne contactati! Garantam castigul reciproc! [ID P10904]

  • Nr. camere:2
  • S. utila:3024.00 mp
  • S. construita:3628.00 mp
  • Comp.:Open space
  • Nr. bai:2
  • Nr. parcari:6
  • Structura rezistenta:Metal
  • Regim inaltime:P+1
  • S. parc industrial:5847 mp
  • Inaltime:9.50 m
  • Utilitati generale: Curent, Apa, Canalizare, Gaz
  • Sistem incalzire: Centrala proprie
  • Podele: Parchet, Gresie
  • Stare: Finisat
  • Ferestre: Termopan
  • Iluminat: Spoturi
  • Amenajare strazi: Asfaltate, Pietruite
Vezi telefon Mesaj