Imagine 77

Spatiu birou de inchiriat | 100mp | Curte 500mp | Andrei Muresanu!

ID: P12503 Cluj-Napoca, Andrei Muresanu 35
1.500€ 2.000€
Camere
2
Suprafata utila
100 mp
Etaj
Parter
An constructie
1950
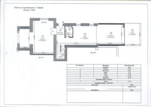
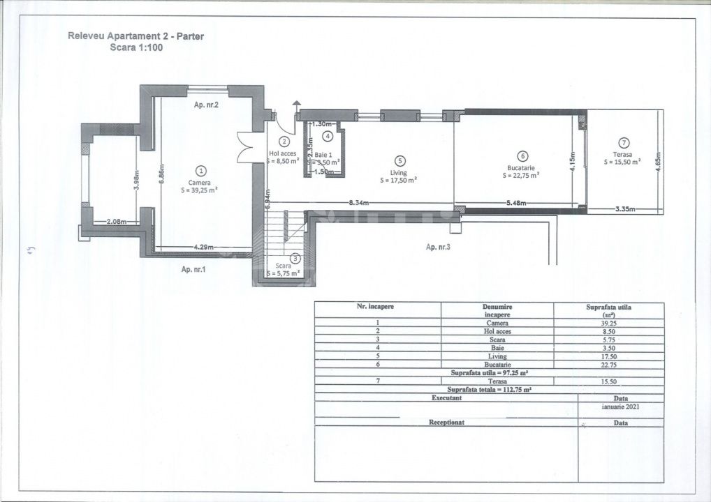
Descriere
Va propunem spre inchiriere un spatiu de inchiriat, intr-o vila interbelica foarte bine intretinuta in cartierul Andrei Muresanu, zona str. Brasov! Dispune de o curte de 500mp!

Supeafata utila este de 100 mp si este compartimentat astfel:
Parter:

- 2 incaperi
- 1 baie
- 1 spatiu de depozitare
- terasa si curte


Spatiul este ideal pentru birou notarial/avocatura dar si pentru multe alte domenii.

Se inchirieaza nemobilat, doar cu chicineta mobilata.

Pentru mai multe informatii sau programarea unei vizionari, nu ezitati sa ne contactati! Garantam castigul reciproc! [ ID Proprietate: P12503]
Caracteristici
  • ID:P12503
  • Nr. camere:2
  • S. utila:100.00 mp
  • S. curte:500.00 mp
  • Comp.:Compartimentat
  • Etaj:Parter
  • Nr. bai:1
  • Terase:1
  • An constructie:1950
  • Structura rezistenta:Beton
  • Tip imobil:Casa/Vila
  • Regim inaltime:P+M
Specificatii
Curent
Apa
Canalizare
Gaz
Fibra optica
Centrala proprie
Calorifere
Aer conditionat
Vopsea lavabila
Faianta
Parchet
Gresie
Ferestre PVC
Lampi
Spatiu depozitare
Spatiu verde amenajat
Apometre
Contor gaz
Nemobilat
Interfon
Curte
Localizare
Eszter Fazakas
Senior Broker
Esti interesat de aceasta proprietate ?
Proprietati similare
Imagine 4225
Spatiu de birou | 70mp | Parcari | La cheie | Marasti | Zona Kaufland
Cluj-Napoca, Marasti 1.500€ + TVA
1 camera 2 bai 70mp