Imagine 77

Comision 0% Casa individuala noua | Teren 800mp | Sat Gheorghieni!

ID: P10948 Gheorghieni, Central 166
325.000€
Camere
5
Suprafata utila
140 mp
Bai
3
Front stradal
12 m
An constructie
2025
Descriere
Proiect de 4 case noi Reprezentat Exclusiv de Agentia noastra cu Comision 0% pentru cumparator!

Vă propunem spre vânzare o casă individuală modernă, aflată în faza de proiect, in satul Gheorghieni, la o distanta de 5 minute de cartierul Borhanci, perfect integrată în peisajul liniștit al zonei rurale.

Proprietatea se află pe un teren generos de 800mp, oferind spațiu ideal pentru grădină, loc de joacă sau relaxare.

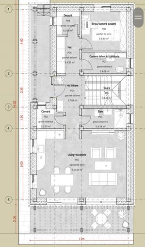
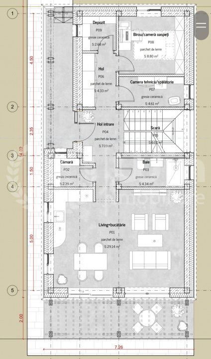
Suprafață utilă: 140 mp, compartimentată eficient pe parter și mansardă, gandite astfel:
- parter: camera, bucatarie cu living generos, camara, loc depozitare, camera tehnica, baie si acces catre terasa de cca 15mp
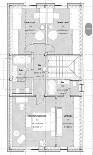
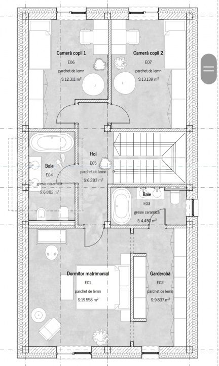
- etaj: 3 camere decomandate din care o camera matrimoniala cu baie proprie si garderoba, 2 camere pentru copii si o baie comuna.

Construcție va fi realizată din materiale de calitate superioară, pentru durabilitate și un standard ridicat al locuirii.

Stadiul de predare al casei: semifinisat (pereti gletuiti, incalzire in pardoseala, utilitati trase la pozitie, sapa autonivelata, curte pavata), cu posibilitate de predare finisat complet la cerere, personalizat după preferințele dumneavoastră.

Casa respectă stilul tradițional al zonei rurale, păstrând farmecul locului, dar cu dotări moderne, pentru un trai confortabil.

Modalitatea de plată propusă este în 3 tranșe avantajoase:
- 40% la semnarea antecontractului, pentru rezervarea proprietății și demararea construcției.
- 40% la finalizarea casei în faza de roșu, etapă în care imobilul este ridicat și structura este completă.
- 20% la recepția finală a casei și semnarea contractului de vânzare-cumpărare, moment în care are loc predarea oficială a proprietății.

Vânzarea se realizează de pe persoană fizică, iar tranzactia NU este purtatoare de TVA.

Această locuință reprezintă alegerea ideală pentru cei care caută liniște, spațiu generos și un cămin care îmbină tradiția cu standardele actuale de calitate.

Pentru mai multe detalii sau programarea unei vizionari, nu ezitati sa ne contactati! Garantam castigul reciproc! [ ID Proprietate: P10948 ]
Caracteristici
  • ID:P10948
  • Nr. camere:5
  • Nr. dormitoare:4
  • S. utila:140.00 mp
  • S. terase:15.00 mp
  • S. construita:160.00 mp
  • S. teren:800.00 mp
  • Nr. bucatarii:1
  • Nr. bai:3
  • Nr. balcoane:1
  • Nr. parcari:2
  • Front stradal:12.00 m
  • Nr. fronturi:1
  • An constructie:2025
  • Structura rezistenta:Caramida
  • Regim inaltime:P+M
  • Orientare:Mixta
Specificatii
Curent
Apa
Canalizare
Gaz
Centrala proprie
Incalzire pardoseala
Izolatie Exterior
Ferestre PVC
Usa intrare PVC
Spatiu depozitare
Dressing
Bucatarie Nemobilata
Bucatarie Neutilata
Apometre
Contor gaz
Nemobilat
Curte
Gradina
Localizare
Edvárd - Andrei Holló
Consilier Imobiliar
Esti interesat de aceasta proprietate ?
Proprietati similare
TOP 0% comision Rep. exclusiva Imagine 9309
Comision 0% Casa individuala la cheie | 360mp teren | Ira Someseni
Cluj-Napoca, Someseni 330.000€ 350.000€
5 camere 2 bai 140mp
TOP Imagine 105
Casa tip duplex | 4 camere | 200mp teren | Panorama | Zona Voronet!
Cluj-Napoca, Iris 329.000€
4 camere 3 bai 120mp
Imagine 9283
Casa individuala | 230mp utili | 716 mp teren | Zona Valea Chintaului
Chinteni, Sud 370.000€ 390.000€
4 camere 2 bai 230mp
Imagine 8617
Casa noua cu 4 camere | 127mp utili | 878 mp teren | Sat. Gheorghieni
Gheorghieni, Central 360.000€
4 camere 3 bai 127.30mp
Imagine 8510
Casa individuala | Teren 474mp | Dambul Rotund | Zona Maramuresului
Cluj-Napoca, Dambul-Rotund 309.000€
2 camere 1 baie 100mp
Imagine 8500
Duplex cu 4 camere finisat | 152mp utili | Garaj | Zona Voronet!
Cluj-Napoca, Iris 310.000€ + TVA
4 camere 3 bai 152mp