Imagine 77

Apartamente 2,3,4 camere in Ansamblu Premium cu CF | Cartier Zorilor!

ID: P10724 Cluj-Napoca, Zorilor 58
196.303€
Camere
3
Suprafata utila
65.50 mp
Etaj
Etaj 1
Bai
2
Parcari
1
An constructie
2024
Descriere
Va propunem spre vanzare apartament intr-un complex Rezidential exclusivist amplasat in cartierul Zorilor, in proximitatea punctelor de interes. Punctele forte ale acestui ansamblu sunt terasele generoase si privelistea superba asupra orasului.

Sunt disponibile ultimele proprietati de 2,3 si 4 camere, avand compartimentari si orientari diverse.

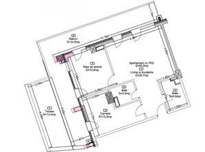
Apartamentul dispune de o suprafata utila de 65 mp, iar compartimentarea semidecomandata este gandita astfel:
- 2 dormitoare;
- 1 bucatarie + living open space ;
- 2 bai;
- 2 balcoane;
- 1 terasa ;

Printre dotarile Ansamblului putem aminti:
- gradina urbana de 3500 mp
- sistem supraveghere video si paza 24/7
- arhitectura splendida
-clasificarea "Green Homes" care certifica un consum redus de energie

Preturile afisate sunt cele finale si NU se adauga TVA. Locurile de parcare se achizitioneaza contracost. Se accepta orice modalitate de plata.

Predarea se face la stadiul de semifinisat, care include: centrala termica in condensare cu incalzire in pardoseala, geamuri cu tamplarie din aluminiu, instalatiile trase pe pozitie, terasa finisata si spatii comune amenajate.

Pentru mai multe informatii sau programarea unei vizionari, nu ezitati sa ne contactati! Garantam castigul reciproc!

[ ID Proprietate: 10724 ]
Caracteristici
  • ID:P10724
  • Nr. camere:3
  • Nr. dormitoare:2
  • S. utila:65.50 mp
  • S. balcoane:5.00 mp
  • S. terase:17.30 mp
  • S. construita:75.00 mp
  • Comp.:Semidecomandat
  • Confort:1
  • Etaj:Etaj 1
  • Nr. bucatarii:1
  • Nr. bai:2
  • Nr. balcoane:2
  • Nr. parcari:1
  • An constructie:2024
  • Structura:Caramida
  • Tip imobil:Bloc
  • Regim inaltime:S+D+P+14
  • Orientare:Mixta
Specificatii
Curent
Apa
Canalizare
Gaz
Centrala proprie
Incalzire pardoseala
Ferestre PVC
Usa intrare Metal
Usa interior Lemn
Terasa
Bucatarie Nemobilata
Bucatarie Neutilata
Apometre
Contor gaz
Nemobilat
Interfon
Videointerfon
Lift
Gradina
Localizare
Csapo Szabolcs
Broker | Owner
Esti interesat de aceasta proprietate ?
Proprietati similare
TOP 0% comision Rep. exclusiva Imagine 9825
Comision 0% | Apartament 2 camere 60mp in bloc nou | Zorilor
Cluj-Napoca, Zorilor 169.500€ 174.900€
2 camere 1 baie 60mp
Imagine 9973
Apartament cu 3 camere | Balcon | 54mp | Grigorescu | Zona Donath!
Cluj-Napoca, Grigorescu 195.000€
3 camere 1 baie 54mp
Imagine 9922
Apartament 4 camere | Decomandat | Renovat | Manastur | Primaverii
Cluj-Napoca, Manastur 224.900€
4 camere 2 bai 77mp
Imagine 9786
Apartament cu 2 camere | 60mp | Balcon | Titulescu | Interservisan!
Cluj-Napoca, Gheorgheni 185.000€
2 camere 1 baie 60mp
0% comision Imagine 9768
Apartament 3 camere | Decomandat | Balcon | Campului | Manastur
Cluj-Napoca, Manastur 178.000€
3 camere 2 bai 65mp
Imagine 9748
Apartament cu 2 camere decomandat | 53mp | Etaj 3/4 | Intre Lacuri!
Cluj-Napoca, Intre Lacuri 169.000€
2 camere 1 baie 53mp