Imagine 77

Apartamente 2,3,4 camere in Ansamblu Premium cu CF | Cartier Zorilor!

ID: P10725 Cluj-Napoca, Zorilor 2
153.064€ 157.656€
Camere
2
Suprafata utila
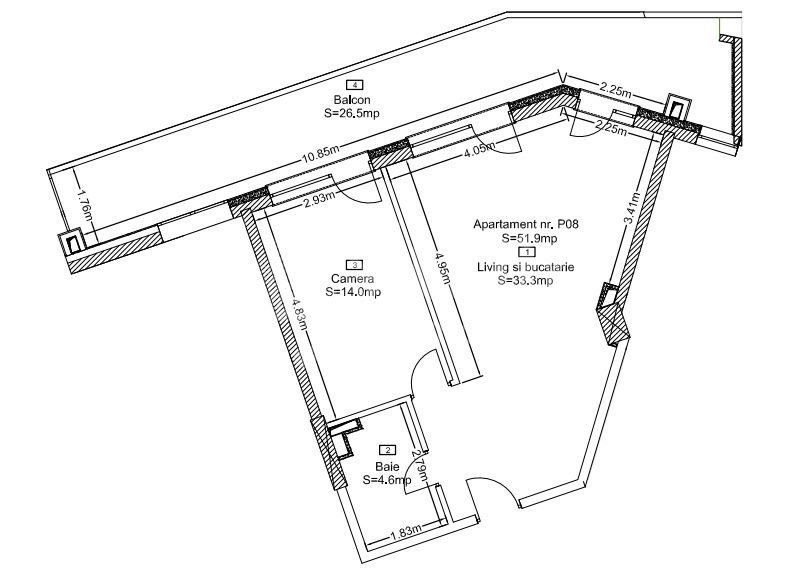
52 mp
Etaj
Parter
Bai
1
Parcari
1
An constructie
2024
Descriere
Va propunem spre vanzare apartament intr-un complex Rezidential exclusivist amplasat in cartierul Zorilor, in proximitatea punctelor de interes. Punctele forte ale acestui ansamblu sunt terasele generoase si privelistea superba asupra orasului.

Sunt disponibile ultimele proprietati de 2,3 si 4 camere, avand compartimentari si orientari diverse.

Apartamentul dispune de o suprafata utila de 52 mp, iar compartimentarea semidecomandata este gandita astfel:
- 1 dormitor;
- 1 bucatarie + living open space ;
- 1 baie;
- 1 balcon 26 mp

Printre dotarile Ansamblului putem aminti:
- gradina urbana de 3500 mp
- sistem supraveghere video si paza 24/7
- arhitectura splendida
-clasificarea "Green Homes" care certifica un consum redus de energie

Preturile afisate sunt cele finale si NU se adauga TVA. Locurile de parcare se achizitioneaza contracost. Se accepta orice modalitate de plata.

Predarea se face la stadiul de semifinisat, care include: centrala termica in condensare cu incalzire in pardoseala, geamuri cu tamplarie din aluminiu, instalatiile trase pe pozitie, terasa finisata si spatii comune amenajate.

Pentru mai multe informatii sau programarea unei vizionari, nu ezitati sa ne contactati! Garantam castigul reciproc!

[ ID Proprietate: 10725 ]
Caracteristici
  • ID:P10725
  • Nr. camere:2
  • Nr. dormitoare:1
  • S. utila:52.00 mp
  • S. balcoane:26.00 mp
  • S. construita:65.00 mp
  • Comp.:Semidecomandat
  • Confort:1
  • Etaj:Parter
  • Nr. bucatarii:1
  • Nr. bai:1
  • Nr. balcoane:2
  • Nr. parcari:1
  • An constructie:2024
  • Structura:Caramida
  • Tip imobil:Bloc
  • Regim inaltime:S+D+P+14
  • Orientare:Mixta
Specificatii
Curent
Apa
Canalizare
Gaz
Centrala proprie
Incalzire pardoseala
Ferestre PVC
Usa intrare Metal
Usa interior Lemn
Terasa
Bucatarie Nemobilata
Bucatarie Neutilata
Apometre
Contor gaz
Nemobilat
Interfon
Videointerfon
Lift
Gradina
Localizare
Csapo Szabolcs
Broker | Owner
Esti interesat de aceasta proprietate ?
Proprietati similare
TOP 0% comision Rep. exclusiva Imagine 1
Comision 0% Apartament 2 camere decomandat in bloc nou | Zorilor
Cluj-Napoca, Zorilor 174.900€
2 camere 1 baie 60mp
TOP Imagine 4880
Apartament cu 2 camere | Terasa | 46mp | Intre Lacuri | Dunarii
Cluj-Napoca, Intre Lacuri 133.000€ + TVA 135.000€ + TVA
2 camere 1 baie 46mp
TOP 0% comision Rep. exclusiva Imagine 5928
Apartament 2 camere decomandat | Bloc nou | Etaj 1 | Colinei Manastur!
Cluj-Napoca, Manastur 139.000€ 145.000€
2 camere 1 baie 52mp
Imagine 5889
Apartament 2 camere | 53mp | Decomandat | Intre Lacuri | Zona Tulcea
Cluj-Napoca, Intre Lacuri 165.000€ 168.000€
2 camere 1 baie 53mp
Imagine 5899
Apartament 2 camere in bloc nou | Garaj | Gheorgheni | Iulius Mall!
Cluj-Napoca, Gheorgheni 175.000€
2 camere 1 baie 42mp
Imagine 5850
Apartament 2 camere decomandat | La Cheie | Etaj 1 | Dambul Rotund
Cluj-Napoca, Dambul-Rotund 140.000€
2 camere 1 baie 56mp