Imagine 77

Apartament 2 camere | Bloc nou | Terasa 65mp | Parcare | Europa

ID: P12619 Cluj-Napoca, Europa 37
240.000€
Camere
2
Suprafata utila
61.46 mp
Etaj
Etaj 3
Bai
1
Parcari
1
An constructie
2026
Descriere
Agentia Win Imobiliare propune spre vanzare un apartament cu 2 camere, situat la etajul 3 al unui imobil nou dispus pe 3 niveluri, finalizat in anul 2026. Localizarea este in Cluj-Napoca, cartierul Europa, iar printre punctele de interes din zona putem aminti: scoli, magazine, mijloace de transport public.

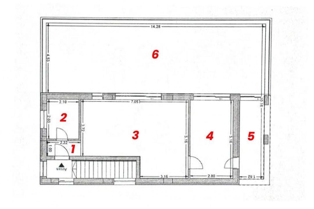
Suprafata utila a proprietatii este de 61,46mp, la care se adauga o terasa de 65mp, iar compartimentarea semidecomandata este gandita astfel:
-Living + Bucătărie open space – 30.9 mp
-Dormitor – 14.5 mp
-Hol – 2.2 mp
-Baie – 5.5 mp
-Dressing – 8.36 mp

Terasa de 65mp este pregătită cu racord de apă pentru instalarea unui jacuzzi.

La nivelul superior se află terasa panoramica, cu o suprafață comparabilă cu cea a apartamentului.

Dispune de loc de parcare acoperit care este inclus in pretul afisat.

Confortul termic este asigurat de incalzirea in pardoseala, centrala termica proprie, imobilul fiind izolat pe exterior.

Datorita caracteristicilor proprietatii, consideram apartamentul ca fiind optiunea ideala pentru cine caută un spațiu luminos, bine poziționat, cu terase generoase și vedere deschisă asupra orașului.

Vrei sa devii noul proprietar al acestui apartament? Pentru mai multe informatii sau programarea unei vizionari, nu ezita sa ne contactezi! Garantam castigul reciproc!

[ ID Proprietate: P12619 ]
Caracteristici
  • ID:P12619
  • Nr. camere:2
  • Nr. dormitoare:1
  • S. utila:61.46 mp
  • S. terase:65.00 mp
  • S. construita:69.00 mp
  • Comp.:Semidecomandat
  • Confort:1
  • Etaj:Etaj 3
  • Nr. bucatarii:1
  • Nr. bai:1
  • Nr. parcari:1
  • An constructie:2026
  • Structura:Caramida
  • Tip imobil:Bloc
  • Regim inaltime:P+3
  • Orientare:Nord-Vest
Specificatii
Curent
Apa
Canalizare
Gaz
Centrala proprie
Izolatie Exterior
Ferestre Termopan
Usa intrare Metal
Apometre
Contor gaz
Nemobilat
Interfon
Localizare
Ioan-Cristian Alexandru
Consilier Imobiliar
Esti interesat de aceasta proprietate ?
Proprietati similare
Imagine 10902
Apartament 3 camere | Imobil nou | 74mp | Etaj 1 | Andrei Muresanu
Cluj-Napoca, Andrei Muresanu 252.900€ + TVA
3 camere 2 bai 74mp
Imagine 10875
Apartament 3 camere | 72mp | Decomandat | Marasti | Zona Piata Marasti
Cluj-Napoca, Marasti 210.000€ 235.000€
3 camere 2 bai 72mp
Imagine 10805
Apartament cu 2 camere | 62mp | Balcon | Bloc nou | Zona Dorobantilor
Cluj-Napoca, Marasti 230.000€
2 camere 1 baie 62mp
Imagine 10666
Apartament 2 camere | Bloc nou | 56mp | Etaj 1 | Zona Rivus Mall!
Cluj-Napoca, Iris 205.000€ 229.000€
2 camere 1 baie 56mp
Imagine 10463
Apartament 4 camere finisat| Bloc nou | 2 Parcari incluse | Zona Rivus
Cluj-Napoca, Iris 260.000€
4 camere 2 bai 70mp
Imagine 10232
Apartament la casa 3 dormitoare | Curte | Parcare | Zona Horea
Cluj-Napoca, Centru 260.000€
3 camere 1 baie 50mp